REQUEST A TOUR If you would like to see this home without being there in person, select the "Virtual Tour" option and your advisor will contact you to discuss available opportunities.
In-PersonVirtual Tour

$ 217,500
Est. payment | /mo
5 Acres Lot
$ 217,500
Est. payment | /mo
5 Acres Lot
Key Details
Property Type Vacant Land
Sub Type ACREAGE
Listing Status Active
Purchase Type For Sale
Subdivision Metes And Bounds
MLS Listing ID 21894450
HOA Y/N No
Lot Size 5.000 Acres
Acres 5.0
Property Sub-Type ACREAGE
Source Valley MLS
Property Description
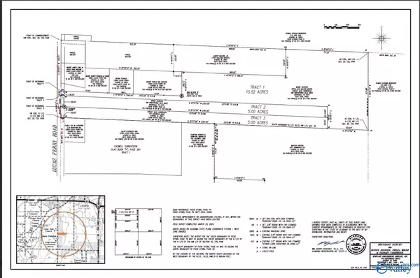
This 5-acre parcel on Lucas Ferry Road in Athens, AL offers a rare opportunity to build, invest, or develop in one of Limestone County's most desirable locations. With excellent road frontage, mostly level topography, and utilities nearby, the land is well-suited for a custom home, mini-farm, or future residential development. Just minutes from downtown Athens, Hwy 72, and I-65, this property provides the perfect balance of peaceful rural surroundings and convenient access to schools, shopping, and the new Buc-ee's. Whether you're planning to build now or hold for the future, this land offers space, and flexibility.
Location
State AL
County Limestone
Direction From Hwy 72 W, Left On Lucas Ferry Road
Interior
Fireplace No
Exterior
Present Use Commercial
Building
Lot Description Level
Sewer None
Water Public
New Construction No
Schools
Elementary Schools Other
Middle Schools Other
High Schools Athens High School
Others
Tax ID 1009300000002006

Copyright
Based on information from North Alabama MLS.
Based on information from North Alabama MLS.
Listed by Powerhouse Realty Group
GET MORE INFORMATION

David Trueb
Partner | Lic# 000074717







